Projekty podrobně
kulturní dům ústí nad orlicí 08/2024
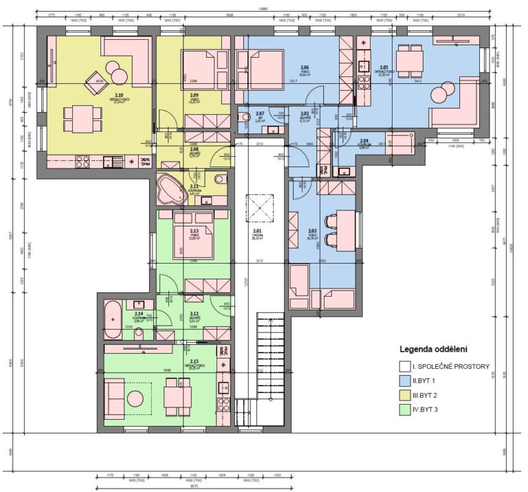
Návrh chápe Kulturní dům, jako centrální místo setkávání obyvatel města. Místo této důležitosti v širším kontextu navazuje jak na historií města spojenou s tkalcovstvím, tak reaguje i na soudobé významné události, zejména mezinárodně proslulou Kociánovu houslovou soutěž, jejímž pořádáním se pyšní blízká umělecká škola. Tyto myšlenky se projevily v ústředním tématu návrhu, kterým je PROSTOR UTKANÝ ZE SVĚTLA A HUDBY.
Prosvětlení, vzdušnost a zjednodušení prostorových vazeb, multifunkčnost a variabilitu vizualizuje moderní prvek světelných strun/nití, které se z houslového hmatníku napínají z veřejného prostoru skrz stavbu v působivém efektu zakončeném „tkaninou“ světelné podlahy venkovní terasy.
Urbanisticky se projekt soustředí zejména na zkvalitnění jihozápadního předprostoru stavby. Nová terasa , která nabízí v suterénu praktické kryté zásobování i parkovací stání s bezbariérovým vstupem do vnitřních prostor budovy. V návaznosti na hlavní prostory sálu a hotelu terasa umožňuje rozšíření kulturních událostí do exteriéru stavby s výhledem na město i okolí.
Popis urbanistického řešení, architektonického, interiér
Výchozí body návrhu:
- Časový rozměr – historický kontext místa i města
- Prostorový rozměr z urbánního hlediska – definování celistvých „míst“ okolo budovy dle funkce a ohraničení jejich vnímání, návaznost na okolní stavby, hodnotné výhledy
- Prostorový rozměr z architektonického hlediska – respektování arch. hodnot stavby a jejich přizpůsobení soudobým požadavkům. Vytvoření funkčních provozních vazeb, zlepšení tepelných a technických vlastností stavby, interiérový komfort a podání hodnotných materiálů a uměleckých děl „v nové světle“ modernizovaného interiéru.
- Význam místa a způsob jeho užití – větší atraktivita, přístupnost, komfort užívání, variabilita, umožňující rozšíření spektra typu pořádaných veřejných i soukromých akcí.
Historický kontext místa definují tři blízké stavby – Hernychova vila, budova stávající VOŠ a SŠ zdrav. a soc. a budova gymnázia. V kontextu města je nejvýraznější linie tkalcovství, která přinesla největší rozkvět a v soudobém hledisku lze zmínit zejména turistický význam a význam z hlediska pořádání regionálních i mezinárodních kulturních akcí.
V rámci urbanismu jsme ze severozápadu respektovali návrh arch. Kokeše, který intenzivně ztvárňuje prostor mezi stavbami umělecké školy, VOŠ a SŠ a řešenou stavbou formou netradiční parkové úpravy. Z hlediska využití se jedná o prostor, který je funkční a je rozmanitě využíván občany města. V rámci tohoto prostoru jsme definovali dílčí funkční subprostory a snažili se o jejich zdůraznění, celistvé vnímání a otevření, které by lákalo ke vstupu (princip tvorby funkčně vymezeného „místa“). Zejména se jedná o vstupní předprostory KD a hotelu Poprad.
Popis urbanistického řešení, architektonického, interiér - podrobně
Vzhledem k významu KD a pozici vstupu do ZUŠ jsme se rozhodli zde umístěnou minimálně vytěžovanou křižovatku odstranit a upřednostnit pohyb pěších. Spojení obou míst zdůrazňuje skulptura hlavy houslí a prvkem světelných strun v pochozí ploše, navádějící lidi ke vstupu do KD.
Jihozápadní strana stavby disponuje velkým, v současnosti nevyužitým potenciálem z hlediska oslunění v odpoledních hodinách a také dispozici terénu, který se svažuje dolů směrem k řece Třebovka. Při odstranění některých stromů vytváří výhled na celé údolí i protější kopce. Pro maximální využití jsme zde navrhli velkorysou terasu. Nový prostor terasy je možné využít pro rozšíření kulturních akcí do exteriéru, tak pro posezení pro hosty restaurace. Na terasu navazuje v nižší úrovni polosoukromá zahrada, která nabídne větší míru soukromí než veřejný park na druhé straně. Zahrada je vymezena zelení a oplocením a přístupná přímo z terasy dvěma schodišti, které lze jednotlivě uzavřít v případě akce v KD nebo naopak v hotelové části. Koncept terasy izoluje dopravu od pobytového prostoru tím, že parkovaní a zásobování zůstává skryto pod perforovanou profilovanou hliníkovou fasádou. Parkování na terénu je ponecháno v severozápadní části.
Návrh respektuje architektonickou, uměleckou i materiálovou hodnotu stavby. Nový prvek světelných strun v exteriéru se ve foyer rozvíjí do světelných nití pomyslného tkalcovského stavu. Ty se napínají skrz budovu po stěně a stropu až do světelné „tkaniny“ podlahy terasy s převislými „třásněmi“ nasvětlujícími zahradu. Světelný prvek přináší nové netradiční vizuální podání. Doplněním světlých stěn a světle šedé parketové podlahy sálu se celý interiér prosvětluje.
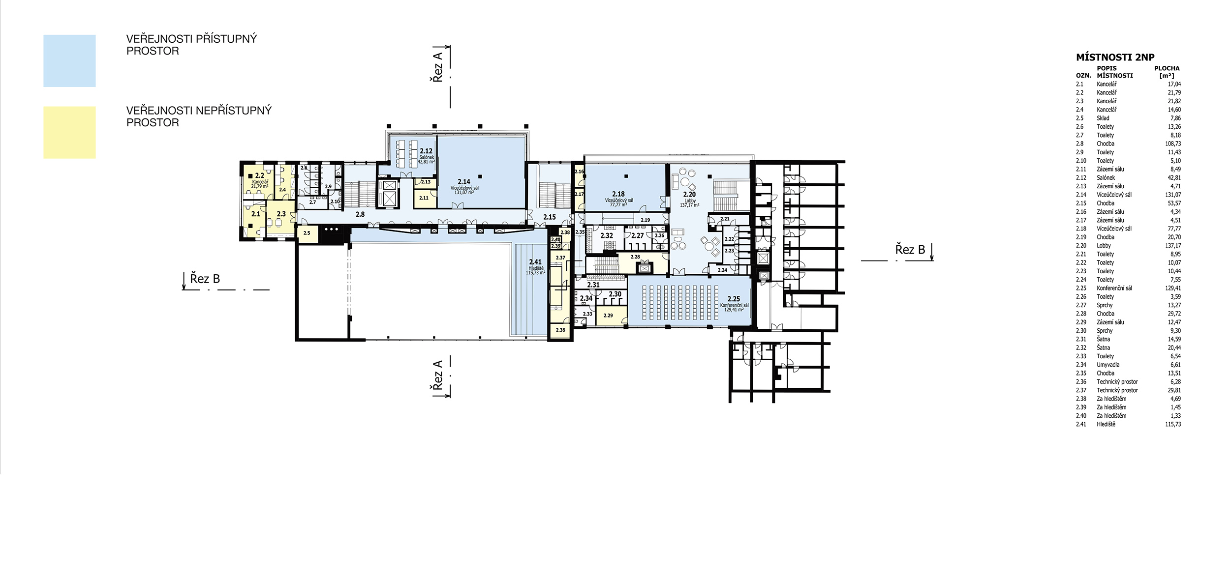
Popis provozního řešení
Záměrem bylo vytvořit prostory schopné reagovat na různé v čase se měnící potřeby provozu stavby. Cílem byla víceúčelovost, odstranění duplikace provozů v rámci obou částí stavby, minimalizace křížení provozů, optimalizaci návazností, bezbariérovost. Nový bezbariérový výtah přístupný z foyer může sloužit i pro přístupnost do 2NP Popradu. Druhý výtah je nákladní, umístění je optimalizováno s ohledem na cenu (společná šachta) a provozní návaznosti.
1PP je nově zpřístupněno kromě výtahu také rozšířeným schodištěm. Nachází se zde také přístup do krytých garáží.
Kompletní gastronomii jsme přesunuli do 1NP z důvodu ideálního napojení na exteriér, hlavní sál i kvůli zjednodušení zásobování. V hotelové části ze strany ulice jsme navrhli kavárnu 1.24 s venkovním posezením a pultem viditelným přímo z foyer. Na druhé straně s přístupem na terasu je navržena restaurace 1.36, která přímo navazuje na variabilní prostor 1.37, kterým je oddělený mobilní stěnou a může se připojit jak pro účely zvětšení kapacity restaurace, tak jako rautový sál pro obsluhu hlavního sálu KD. Díky tomu získá sál přímější propojení s kavárnou a další prostor pro velké události i přímé propojení na exteriérový bar. Ve stávajícím stavu je část hlavního sálu pod balkonem vyvýšena. V novém návrhu je toto vyvýšení odstraněno a výška podlah sjednocena. Prostor 1.37 může sloužit i samostatně např. jako snídaňová jídelna pro ubytované hosty.
Popis technologického konceptu
Vytápění a větrání hlavních prostor funguje s rekuperací, zajištěno vzduchotechnickou jednotkou s tepelným čerpadlem. Rozměr jednotky je 2x3x7m. Podružné místnosti budou vytápěny tepelným čerpadlem v systému typu fan-coil případně s podlahovým vytápěním (dle konstrukčních možností). V návaznosti na předpokládaný potřebný prostor (9x6m) pro technologie a možnost návaznosti na exteriér jsme zvolili místnost 0.1, která optimálně splní tyto požadavky. Při tomto řešení nebude nutné umisťovat technologii na střechu stavby.
Páteřní trasy vzduchotechnických rozvodů budou vedeny pod stropem 1PP a zaústěny do nové zdvojené příčky v hlavním sále, která je v optimální pozici uprostřed dispozice. Pro danou kapacitu stavby se předpokládají 3 potrubí pro přívod a 3 potrubí pro odvod vzduchu, rozměr každého z nich 1×0,5m.
Řešení ostatních technologií stavby bude principiálně řešeno jako nové v souladu se stávajícím stavem.
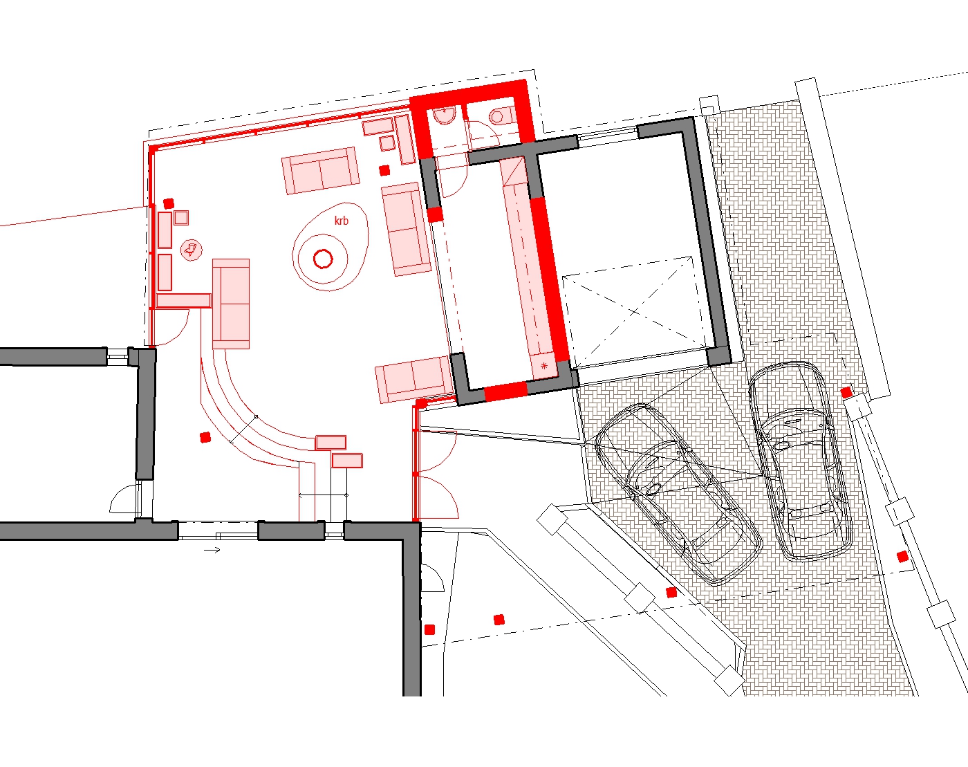
REKONSTRUKCE TERASY 08/2024
V rámci přípravy projektu byl proveden podrobný stavebně technický průzkum, který zajistil identifikaci všech potřebných skladeb a umístění vnitřních konstrukcí. Kromě toho jsme nechali realizovat i skenování budovy, které nám poskytlo přesná data o prostoru. Na základě těchto dat byl celý projekt detailně vymodelován metodou BIM (Building Information Modeling), což umožnilo efektivní plánování a optimalizaci návrhu.
Projekt obsahuje i změnu dispozice přístupu na terasu. Původní schodiště bylo nahrazeno novým, které jsme orientovali opačným směrem, a byl přidán zcela nový vstup na terasu.
ANTRACIT PROPERTY 1, 11/2023
Projekt ANTRACIT PROPERTY 1 je adaptací části bývalých plzeňských Železničních opraven a strojíren na využití pro administrativní a skladové účely. Projekt se skládá z pěti stavebních a sedmnácti inženýrských objektů. Zpracovali jsme jako generální projektant skenování staveb, dokumentace skutečného stavu všech objektů, geodetického zaměření, zhotovení průzkumů stavebně-technického, inženýrsko-geologického, radonového, korozního, průzkumu na azbest, penetračního sondování konstrukcí a zpracovatelem projektové dokumentace pro odstranění některých staveb v území, projektové dokumentace pro společné povolení v Etapě I, v Etapě II a Etapě III. A projektové dokumentace pro provádění stavby v Etapě I a Etapě III.
Objekt historické budovy postavený okolo roku 1870 a až do současnosti si ponechal převážně původní hmotové členění. Hlavní jižní křídlo bylo navrženo jako přestavba na moderní administrativní budovu s monumentální převýšenou vstupní halou s hlavním schodištěm, vestavěnými podlažími a novou střešní nástavbou. Halové objekty si ponechaly svůj charaktera a byly modernizovány včetně zázemí. Původní dřevěný krov menšího skladu jsme nahradili novou ocelovou konstrukcí. Oba halové krovy jsou zateplené. Pozdější jednopodlažní přístavba z 50. let 20. století byla v rámci zpracování projektu odstraněna a nahrazena novou dvoupodlažní přístavbou, která na původní stavby navazuje jak vizuálně, tak funkčně. Areál jsme doplnili novým halovým objektem s administrativní vestavbou a centrálním prostorem komunikačních, parkovacích a reprezentativních ploch.
podrobnosti zpracování
Pro zpracování projektu byla zvolena metoda fázovaného informačního modelu stavby ( BIM ), který byl založen na pasportizaci z přesného geodetického skenu staveb. Poznatky získané skenováním jsme doplnili podrobným stavebně-technickým průzkumem tak, aby byl umožněn přepočet historických konstrukcí na nové přitížení např. zateplením a instalovanými technologiemi. Na sedlovou střechu nového objektu byla plošně navržena fotovoltaická elektrárna. Veškeré profese technického zařízení budovy byly zpracovány metodou BIM, což zajistilo možnost perfektní koordinace všech projektových týmů i vzhledem k tvarově komplikovanému interiéru stavby.
areál kvazar 03/2024
Projekt představuje novostavbu administrativně skladového areálu sloužícího jako sídlo stavební společnosti. Areál je navržen jako dvojice vzájemně vizuálně propojených staveb. Hlavní část slouží jako sídlo vedení a zázemí pro provoz zaměstnanců výstavby. Skladová hala slouží jako skladový prostor pro nářadí a stavební materiál. Mezi oběma budovami se nachází vnější manipulační a skladovací plocha.
Návrh stavby vycházel z hlavní teze étosu „stavění“ tedy opakovaného seskládávání dílčích částí. Tato myšlenka se promítá nejen na fasádě, ale i vnitřní dispozici stavby, která je ve své horní části průsvitná. Důmyslná kombinace uspořádání prostor, dynamická síťová fasáda a navržená orientace stavby pak vytváří působivé světelné efekty, které mění konstrukčně jednoduchou stavbu na architektonický skvost.
Zpracování proběhlo metodou informačního modelování (BIM) včetně specializovaných profesí.
HALY V AREÁLU DOV 10/2023
Projekt pasportizace halových staveb v oblasti Dolních Vítkovic v Ostravě zahrnoval zastavěnou plochu téměř 13 500 m2 . Výchozím podkladem pro zpracování informačního modelu a z něj odvozené projektové dokumentace bylo pořízení komplexního geodetického laserového skenu, který kromě klasického skenování zahrnoval i dílčí podrobnější zmapování konstrukčních prvků a nálet dronem. Zpracování informačního modelu bylo velmi náročné zejména vzhledem k deformacím stavby způsobených stářím a užívání. Na zmapování geometrických a informačních odchylek a jejich správného zanesení do modelu se podílel celý projektový tým, tak aby bylo dosaženo předem dohodnutých standardů modelu.
PRODEJNA SÝRŮ V GALERII VAŇKOVKA 09/2023
Projekt pro realizaci kioskové prodejny sýrů v Obchodní galerii Vaňkovka, byl našim již druhým projektem pro řetězec prodejen sýrů a pochutin Cheese Market. Návrh vznikl v softwaru Revit a pro ověření správných dostupností pozic zboží pro obsluhu s využitím virtuální reality. Prodejna je již v provozu, nezbývá tedy než popřát ať Vám nová pobočka v Brně dělá radost – aneb kvalitních sýrů není nikdy dost!
Fotky z realizace a více o prodejně se dočtete zde: Představuji novinku ve Vaňkovce – stánek Cheese Market! | www.coolbrnoblog.cz
VILA 02/2023
Některé projekty mají náročnější fázi předprojektové přípravy. U tohoto projektu jsme byli od počátku, kdy se jsme zpracovávali projekt příjezdové komunikace, dělení pozemku na samostatné parcely a nakonec také samotný projekt vily.
Při návrhu byl kladen důraz na maximální využití klimatických podmínek, které nabízí jednotlivé světové strany. Dům se otevírá na jižní stranu atriem, které vytváří intimní, světlý prostor zahrady s bazénem. Soukromí prostoru organicky dotváří tvar terénu, kdy se zahrada postupně zakousává do země. Celkový prostor zahrady poté vymezuje opěrná stěna. Dům svým symetrickým půdorysným tvarem a využitím přírodní zákonitosti zlatého řezu nenásilně rozděluje prostor na určené funkční celky. Nezastíněné střechy bylo maximálně využito instalováním fotovoltaických panelů na celou její plochu.
Při vytváření dokumentace se hojně používaly funkce informačního modelování budov. Stavba je postavena ve výrazně svažitém terénu a výpočty bilance zemních prací probíhaly již ve studii pro správné výškové umístění stavby. První představení studie investorovi se odehrálo ve virtuální realitě. Příkladem využití metody BIM ve fázi povolení stavby je např. níže ukázané axonometrické zobrazení základových konstrukcí.
VILA 02/2023
Projekt novostavby velkorysé vily na hřebeni kopce s úchvatným výhledem až k obzoru. Dominantní pozice stavby vyžadovala citlivé zasazení a kompozici, aby objekt i přes svou velikost harmonicky souzněl se svým okolím. Zároveň stavba svým uspořádáním tvoří závětří a reaguje na větrné horské podmínky. Konstrukce je tvořena železobetonovými rámy s táhlem, což je netypická konstrukce pro rodinné domy.
PROJEKT VESTAVBY PODKROVNÍHO BYTU V HISTORICKÉ BUDOVĚ 04/2024
Projekt vestavby bytu do historického domu na náměstí v Karviné Fryštátě. Návrh interiéru byl prezentován ve virtuální realitě, která slouží investorovi pro marketingovou prezentaci projektu.
NÁVRH KRYTÉ TERASY A KRBU 02/2023
Projekt řešil návrh nového vnějšího prostoru – kryté terasy s venkovní kuchyní. Účelem bylo vhodně navázat na stávající rodinný dům a samostatnou garáž a hmoty staveb vhodně propojit.
Následný návrh kryté terasy navazoval na požadavky osobitého stylu investorů, světlých barev domu a jeho tvaru tak, aby vznikl nový harmonický celek. Na základě těchto předpokladů byla navržena prosvětlená, zasklená krytá terasa, zakrytá dvojicí pultových střech, jejichž výškového rozdílu bylo využito pro prosvětlení formou pásu oken pod římsou střechy. Vyšší část střechy pokračuje až před prostor garáže, kde vytváří kryté parkovací stání. Druhá část střechy poté dokončuje rekonstrukci zmíněné garáže, kde z její části vznikla přestavbou dispozice nová venkovní kuchyně. Středobodem celého prostoru terasy je monumentální ohniště, vytvářející teplý, vlídný prostor pro prosluněné večery strávené na nové terase.
RD V BESKYDECH 11/2022
Projekty změn staveb, ke kterým neexistuje archivní dokumentace začínají vždy pasportizací – tedy vytvořením dokumentace skutečného stavu. Ani u rodinného domu v malé obci v Beskydech tomu nebylo jinak. Zhotovovali jsem model skutečného stavu z laserového skenování. Jeden z výstupů BIM modelu stavby požadovaný investorem byl i model ve formátu .ifc.
BYTOVÝ DŮM ZÁVADA 10/2022
Tato zakázka v malé obci Závada patří mezi další projekty rekonstrukce bytových domů, kde jsme byli u úplného začátku – zpracování dokumentace skutečného stavu.
Tento projekt potřeboval vytvořit BIM model stávajícího stavu objektu, a to za pomocí 3D skenu přeneseného v podobě mračna bodů do programu Revit. Laserové skenování stavby s výstupem do mračna bodů nám zajistilo rychlé zajištění podkladů pro zpracování dokumentace pasportu s minimálním narušením života obyvatel bytového domu.
V následujícím kroku došlo k úpravám dispozic požadovaných bytových jednotek, dle záměru vytvořit z poměrně maloplošných bytů příjemný, vzdušný prostor pro bydlení, a to vše při dodržování stanovených stavebních norem. Vznikly zde tak dvě bytové jednotky o dispozici 2+KK řešené tak, aby maximálně využívaly stávající otvory v obvodovém zdivu a do bytu přinášely velké množství slunečního svitu.
Projekt zpracovaný jako fázovaný informační model.
Veškeré výkresové výstupy jsme generovali z informačního modelu
PROJEKT INTERIÉRU RD VE VIRTUÁLNÍ REALITĚ 09/2022
Projekt interiéru pro rodinný dům využíval metodu informačního modelování budov pro zpracování návrhu řešení vnitřních prostor. Klíčovým bodem návrhu interiéru byla virtuální realita, kdy si investor mohl prohlédnout celý dům vybavený a zkontrolovat návrh „přímo na místě“ virtuální stavby. Ve virtuální realitě tak bylo možné si projít celou dvoupodlažní stavbu a obě její bytové jednotky – zpracovány byly všechny místnosti. Z virtuální reality vzniklo množství vizualizací z nichž některé si můžete prohlídnou níže ve fotogalerii
DOPRAVNÍ ŘEŠENÍ A INŽENÝRSKÉ SÍTĚ 09/2022
Projekty návrhu dopravního řešení a zasíťování lokality o ploše cca 11 000m2 v obci Dobroslavice pro novou výstavbu rodinných domů. Vzhledem ke svažitému terénu byl pro projekční návrh výhodně využit software pro BIM v dopravním inženýrství Civil 3D, který pomáhal také s modelací terénu pro vytvoření návazností na budoucí zástavbu. Kromě komunikace návrh zahrnoval také vodovod, plynovod, dešťovou kanalizaci s návrhem zasakovacích boxů, splaškovou kanalizaci, zpracování přeložky stávající kanalizace a prodloužení kanalizace. Součástí projektu byla také kompletní inženýrská činnost.
VEŘEJNÝ BAZÉN VE STUDÉNCE 08/2022
Projekt přestavby bazénu ve Studénce rozšířil původní prostory bazénové haly o novou část. Navržená přístavba připojená probouráním otvorů v původní obvodové stěně, která se stává nově dělící stěnou mezi hlavní částí bazénové haly a částí relaxační. Velmi členitý prostor s šikmými stropy byl velmi komplikovaný na finální ztvárnění, které v původním projektu stavby nebylo řešeno. V rámci realizační fáze jsme proto byli přizváni k vytvoření BIM modelu stavební části hlavní bazénové haly a přilehlé relaxační části.
Zpracování informačního modelu zadáno s konkrétními požadavky. Cílem bylo vytvořit vizuální návrh řešení obkladů a dlažeb, tak aby mohlo být řešení interiéru jednoznačně odsouhlaseno všemi zúčastněnými stranami. Dále bylo nutné specifikovat použité produkty a jejich přesné množství pro objednávku a vytvořit kladečské plány pro realizaci pokládky.
Zpracování pro představivost komplikovaných prostor nebylo v rámci projektování v BIM žádný problém, neboť veškeré průniky ploch byly 3D modelem jasně definovány. Vzniklo nakonec 17 svislých řezopohledů a 2 půdorysné pohledy pro zachycení všech obkládaných ploch. Veškerý výpočet plochy povrchů jednotlivých obkladů a dlažeb byl prováděn automatizovaně přímo výkazem z modelu. Veškeré vizualizace byly vytvořeny z virtuální reality k projektu, která vznikla přímo z exportu stavebního modelu BIM.
Realizaci stavby jsme dokončili v listopadu 2022 a od prosince tohoto roku slouží zrekonstruovaný bazén opět veřejnosti.
Fotografii původního stavu pro porovnání najdete zde.
NÁVRH OBYTNÉ NÁSTAVBY OC JEŠTĚRKA 05/2022
Předmětem projektu bylo vytvořit návrh obytné nástavby z lehké dřevěné konstrukce pro stávající obchodní centrum Ještěrka ve Frýdku – Místku. Vzhledem k tomu, že obchodní centrum je v současnosti rozděleno mezi řadu různých majitelů, bylo cílem návrhu kromě maximálního funkčního řešení, neznemožnit nástavbu také okolních jednotek a nastolit možný jednotný budoucí vzhled celé stavby.
PŘESTAVBA RODINNÉHO DOMU 04/2022
Přestavba rodinného domu u Hlučína je dalším projektem, který využívá perfektní podrobnost zaměření laserovým skenem pro vytvoření fázovaného informačního modelu přestavby budovy ( BIM 4D) a dokumentace nového stavu.
Účelem přestavby bylo při minimu provedených úprav vytvořit z dvougeneračního domu plnohodnotné jednogenerační bydlení. Projekt se snažil maximálně propojit dům se zahradou a plně využít potenciál krásného místa.
STUDIE ZASTAVITELNOSTI PRO RUČNÍ AUTOMYČKU 02/2022
Studie zastavitelnosti pro ruční automyčku v Ostravě se zabývala posouzením vhodnosti dvou lokalit pro zamýšlenou zástavbu. Součástí bylo zejména vyhodnocení prostorově technických podmínek a souladu s územním plánem města.
VÝSTAVBA AREÁLU SPOLEČNOSTI KVAZAR 02/2022
Studie novostavby areálu stavební firmy na ploše téměř 4000 m2 zahrnovala řešení objektu administrativní budovy a skladové haly včetně souvisejících parkovacích ploch, manipulační plochy a dalších inženýrských objektů. Areál je navržen tak, aby maximálně efektivně využíval tvar pozemku a umožnil zástavbu dalších rozvojových ploch.
Administrativní budova vyniká svým unikátním tvarem, který účelně reaguje na dispozici pozemku. Odklon prosklených fasád od osy budovy severovýchodním a severozápadním směrem zabraňuje přehřívání uvnitř kancelářských prostor. Naopak jihozápadní a jihovýchodní plochy umožňují výhodné umístění fotovoltaických fasádních panelů.
zásady návrhu
Návrh v sobě velice těsně spájí několik výchozích myšlenek. Jako hlavní administrativní sídlo stavební společnosti by mělo vyjadřovat samotný étos stavění. Být stavěn bylo pojato jako viditelně být sestaven z dílčích částí. Dílčí části zde tvoří hlavní stavební jednotka administrativní budovy – kanceláře. Sestavení těchto dílčích jednotek reaguje jednak na omezenou, úzkou dispozici parcely, dále na potřebu odstínit kanceláře před nežádoucími tepelnými zisky a oslnění slunečním záření, na to, že atraktivnější pohledy do zeleně se nachází zejména severním a východním směrem a také na snahu minimalizovat možnost vytvoření dlouhé jednotvárné chodby ve vnitřní dispozici.
Jako vzor prostorového sestavení posloužila inspirace dekorativním způsobem skládání cihel. Benefitem této skladby je přirozené hmotové nadkrytí vstupů do budovy a vytvoření drobných prostorů soukromých teras, které přináší zaměstnancům příležitost přizpůsobit si výhled z okna dle vlastních preferencí nebo rychlou příležitost se regenerovat při soustředění na výkon pracovní činnosti. V neposlední řadě si lze všimnout, že celá dispozice je provázána s konstrukčním řešením objektu, kde byl zvolen železobetonový skelet šikmých rámů procházejících napříč stavbou.
Umístěním oken do fasád obrácených k severu se nabízí využití fasád obrácených více k jihu pro umístění fotovoltaických fasádních panelů. Jako fasádní obklad sendvičového panelu jsou navrženy perforované 3D kazety ve stříbřitě šedé. Tato zvlněná organická struktura kromě své výrazně estetické funkce může připomínat, že stavění je „živý“ proces.
Návrh ocelové skladové haly vychází z utilitárních požadavků na funkčnost. Výchozí architektonickou myšlenkou bylo, že obě stavby se plnohodnotně podílí na tom, čím firma je. Budovy tvoří jediný tým. Jediný spolu fungující pár. Měly by být tedy ztvárněny jako doplňující se dvojice. Stavba haly je proto navržena se stejným opláštěním, jako administrativní budova a také opatřena logem, které je viditelné od komunikace ze všech stran.
IDEOVÝ NÁVRH NOVÉHO NÁMĚSTÍ VE STUDÉNCE 01/2022
Město Studénka svou polohou v blízkosti hlavních dopravních tras i letiště nabývá na významu a má ve svém územním plánu rozsáhlé rozvojové plochy o které je v současnosti velký zájem. Jednou z těchto ploch, tou nejcennější, jsou pozemky, které navazují přímo na stávající centrum města, blíže popsané platnou územní studií. Protože územní studie popisuje území pouze zejména vzhledem k funkčnímu využití ploch, rozhodlo se město Studénka nechat vytvořit ideový návrh, jak by reálně řešení tohoto území mohlo vypadat.
Jednalo se v prvé řadě o návrh samotné plochy náměstí, které dominuje prvek umělé řeky s vodopádem a vodním amfiteátrem. Druhým bodem pak bylo zpracování návrhů jednotlivých staveb v bezprostředním okolí náměstí a návrh rekonstrukce tržnice Kotvice. Celý návrh byl modelován jako několik samostatných projektů v softwaru pro informační modelování budov Revit a dále převeden do virtuální reality, ze které byly zpracovány vizualizace a propagační video. Projekt byl unikátní také svou rozlohou, kdy celková řešená plocha projektu zpracovaná metodou BIM a převedená do virtuální reality přesahovala plochu 100 000 m2.
Jedním z důležitých výstupů projektu bylo také zpracování zprávy s vyhodnocením potenciálu plochy pro další rozvoj města.
ZDRAVOTNÍ STŘEDISKO V OSTRAVĚ 12/2021
Projekt prodeje a celkové modernizace a přestavby zdravotního střediska v Ostravě byl zahájen zpracováním dokumentace skutečného stavu – pasportu stavby. Objekt byl naskenován stacionárním skenerem z exteriéru i interiéru stavby aniž by byl narušen jeho provoz. Následně byl zhotoven modelací z mračna „chytrý“ model stavby tzv. informační model budovy (BIM). Fázovaný informační model stavby byl zdrojem veškeré výkresové dokumentace.
PROJEKT VEŘEJNÉ KOMUNIKACE A DĚLENÍ POZEMKŮ 11/2021
Předmětem projektu byl návrh dělení pozemku v obci Staříč pro výstavbu rodinných domů a návrh nové veřejné komunikace zajišťující dopravní obslužnost. Součástí projektu byla také komplexní inženýrská činnost k vyřízení veškerých stanovisek a povolení.
MLÝN STARÁ VES NAD ONDŘEJNICÍ 10/2021
Pasportizace objektu historického mlýna, pravděpodobně z 18. století, ve Staré Vsi nad Ondřejnicí. Objekt se skládá z části bývalé mlýnice, obytné části a bývalého chlívka. Pasportizace stavby probíhala formou kompletního barevného laserového skenování s přesností 2 mm v souřadnicích S-JTSK Bpv. Sken byl následně převeden modelací formou informačního modelování budov (BIM) na model skutečného stavu budovy v softwaru Revit. Tento model je zdrojem veškerých výkresů pasportizační dokumentace. Velice náročná byla zejména modelace historického krovu s pozůstatky vybavení původního zařízení a mechanizmů mlýnice.
Studie výstavby BD – prověření tří lokalit 09/2021
Studie prověření tří lokalit pro město v Moravskoslezském kraji vyhodnocovala komplexně využitelnost tří pozemků pro zástavbu bytových domů. Přitom v jedné z lokalit se jednalo o bytový dům se zaměřením na bydlení seniorů, v ostatních lokalitách se jednalo o bytové domy bez zaměření na cílovou skupinu obyvatel. Zpracování projektu předcházela rozsáhlá analýza podkladů, technické infrastruktury, vyhodnocení dříve provedených stavebně -technických a jiných průzkumů u pozemků, které jsou v současnosti zastavěny. Důležité pro návrh bylo také mapování historie urbanistických souvislostí místa v kontextu posledních několika staletí, které odrylo hlubší vazby v krajině .
Součástí studie byla technická zpráva, situační výkresy včetně koordinační situace, dále pak zpracování variantních rozpočtů a závěrečná SWOT analýza s vyhodnocením a doporučením pro další postup. Vizualizace zobrazují předpokládané urbanisticko – stavební řešení, které bude dále rozpracováváno v rámci samostatných studií jednotlivých staveb.
Domov pro seniory ve venkovské zástavbě – studie zastavitelnosti
Dva bytové domy na okraji zástavby- studie zastavitelnosti
Rodinný dům 08/2021
Projekt s náročným zadáním komplexní odvážné přestavby rodinného domu původně tradičního venkovského designu s pultovými střechami na moderní vilu s bazénem včetně návrhu zahradních úprav. Pasportizace stavby zpracovaná s využitím laserového skenování do mračna bodů. Pro zobrazení BIM modelu ve fázi studie a využití virtuální reality.
RODINNÝ DŮM 07/2021
Projekt pasportizace a návrhu přestavby rodinného domu v Ostravě zpracovaný s využitím laserového skenování mračna bodů, které poskytlo přesné podklady pro zpracování BIM modelu. Návrh se opíral zejména o hledání harmonie a rovnováhy celkově původně výrazně asymetrického domu. Hlavní novou hodnotou návrhu je velkorysá terasa s vířivkou která vznikla při jižní stěně domu. Součástí projektu byl také návrh oplocení, krytého parkovacího stání a koncepce řešení zahrady, vše zobrazené také ve virtuální realitě.
PALÁRNA 05/2021
Pasportizace objektu Palárna ve Štramberku pro plánovanou celkovou přestavbu. Objekt se skládá z kulturního sálu a restaurace. Pasportizace stavby probíhala formou laserového skenování stavby a následně modelací skutečného stavu budovy metodou BIM v softwaru Revit.
VILA 02/2021
Velkorysý projekt vily v Havířově vznikal kousek po kousku velmi aktivní spoluprací klienta s naší projekční kanceláří ve virtuální realitě. Procházel se jak exteriér, tak celý interiér budovy a kontrolovaly se dispozice, rozměry, vizuální návaznosti. Díky informačnímu modelu stavby měl klient také k dispozici podrobnou studii zastínění pozemku stavbou v různých dnech roku a časových rozmezích pro ještě přesnější rozhodování o vývoji projektu. Součástí projektu v závěrečné fázi byl také návrh koncepce zahrady včetně jeho převedení do virtuální reality.
BYT 12/2020
Projekt zpracovaný metodou BIM včetně fázování stavby (4D) zahrnoval zaměření stávajícího stavu, zhotovení pasportu, návrh řešení a vypracování prováděcí dokumentace přestavby bytu 1+kk včetně statického posouzení, změny způsobu vytápění, elektroinstalace a konceptu interiéru. Koncept interiéru (= zjednodušený projekt interiéru) řešil zejména rozvržení nábytku, volbu designu, barevnosti a materiálového řešení. Hlavním prvkem byl návrh atypického stolu na míru, který umožní z postele vytvořit pohodlné denní sezení. Celý projekt včetně konceptu interiéru byl také investorovi prezentován procházkou ve virtuální realitě.
BYTOVÝ DŮM 11/2020
Předmětem projektu byla pasportizace historického objektu bytového domu v památkové zóně. Stavba, jejíž nejstarší části pravděpodobně vznikly již v 16. století, prošla řadou přestaveb, které jsou dodnes v dispozicích čitelné a vytváří jednotlivé historické vrstvy. Přibližně dnešní podobu získala stavba v roce 1913. Zhotovení dokumentace stávajícího stavu s určitou garantovanou přesností bylo možné jen za pomoci 3D laserového skenování. Geodetická kancelář 3GEOME3 s využitím skeneru FARO FOCUS vytvořila pro nás zaměření formou mračna bodů (Point Cloud) všech vnitřních prostor i exteriéru budovy, které bylo podkladem pro zhotovení 4D fázovaného BIM modelu. Součástí projektu byl také návrh přestavby 3. NP a 4.NP (podkroví) na bytové prostory.








































































































